15′ X 50′ Floor Plan with Elevation
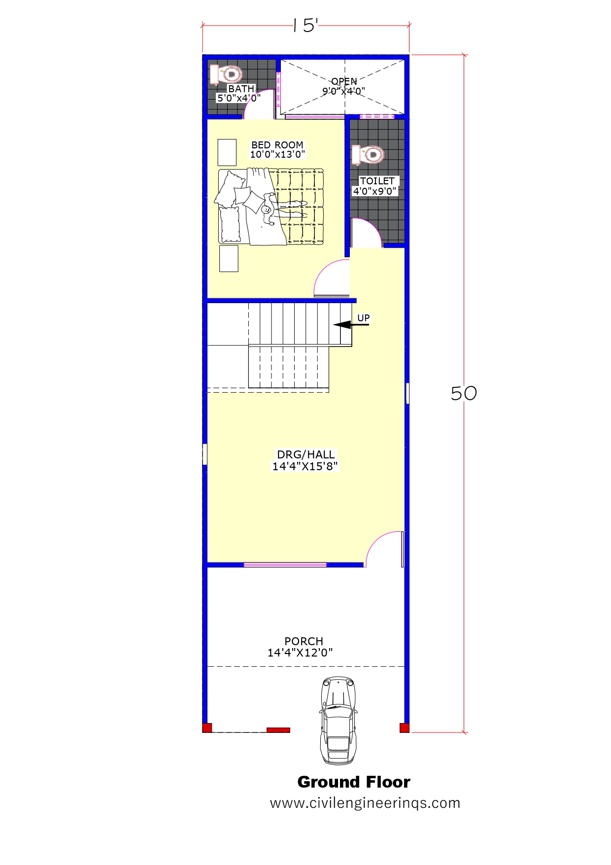
Plot Size: 15′ x 50′ Foot, 750 Sqft plan
Building Type: Ground + 1 Floor (G+1)
Purpose: Ideal for Joint-family
3BHK – Ground Floor, First Floor & Second Floor



Building Features
- Each floor includes spacious bedrooms with attached toilets.
- Ground floor features a living hall ideal for family gatherings.
- A common toilet is provided on the ground floor.
- First floor includes a kitchen in place of the ground floor living hall.
- Balconies are provided on the first and second floors.
- Open terrace on the second floor for general use.
